4 Small Prefabricated Houses At An Unbeatably Low Price

Sabine Neumann avatar Sabine Neumann
Türen 270° schwenkbar homify Small houses
Loading admin actions …

Today we would like to introduce you to four small prefabricated houses from the construction company İdeal Ev's program, which impress architects and builders with their practical, clever room layout, high-quality equipment and, last but not least, their unbeatable price. From a 40 sqm mini house for singles to a 100 sqm single-family home, there is everything that makes price-conscious builders' hearts beat faster.

Would you like to remodel or renovate your house?

We’ll give you advice right away — no strings attached.

Small but nice

Do you dream of owning your own house but have a very limited budget? Our great ideas for small prefabricated houses prove that this doesn't ruin your dream of owning your own home. You will be amazed at how appealing the prefab house prices are and how attractive the designs of the small houses are.

Which prefabricated house is recommended? A F İdeal Ev, which we present to you below, leaves nothing to be desired.

Would you like to remodel or renovate your house?

We’ll give you advice right away — no strings attached.

1. 98 sqm for 10,300 euros

This prefabricated bungalow-style house offers four rooms, a kitchen and a bathroom on 98 square metres at an unbeatable price of just over 10,000 euros. The individual modules are prefabricated in the factory and then professionally assembled on site. The price also includes doors, windows, painting work, electrical and water pipes as well as the complete bathroom equipment.

The floor plan

Here we see the floor plan of the bungalow, which has a 28 sqm living-dining area, hallway, kitchen and bathroom as well as three bedrooms measuring 10 to 14 sqm and can therefore comfortably accommodate a family of four. Floor-to-ceiling windows allow plenty of natural light into the interior and make the available space appear even more spacious.

2. 40 sqm for 5,200 euros

Small but nice: Our experts also have real mini houses in their range that will delight those who are committed to the minimalism trend and don't need a lot of space, but would still prefer to live in their own house instead of in a cramped apartment. Cozy 40 square metre prefabricated houses are available from our experts for an incredible 5,200 euros.

We introduce you to another enchanting mini house in this article .

The floor plan

And here is the floor plan for the mini house: It offers a spacious living and dining area including a fitted kitchen as well as a bedroom and a small bathroom, which has everything you need with a toilet, washbasin and shower. In addition, a 5 sqm veranda expands the living space in the fresh air when the weather is nice. What more do you want?!

3. 100 sqm for 12,900 euros

Here we see the largest house from our prefabricated house experts' range: It has 100 square metres on two levels and makes a very impressive impression at first glance. It was designed based on the model of American duplex houses and is a very family-friendly prefabricated house variant.

The floor plan

The ground floor of the house follows a completely open floor plan in which the living, dining and kitchen areas flow seamlessly into one another. This results in a very modern, spacious living concept with plenty of space and comfort. There is also a guest toilet and the stairs that lead to the upper floor.

The floor plan

On the upper floor there are two bedrooms of exactly the same size and a bathroom. One of the bedrooms also has a small balcony.

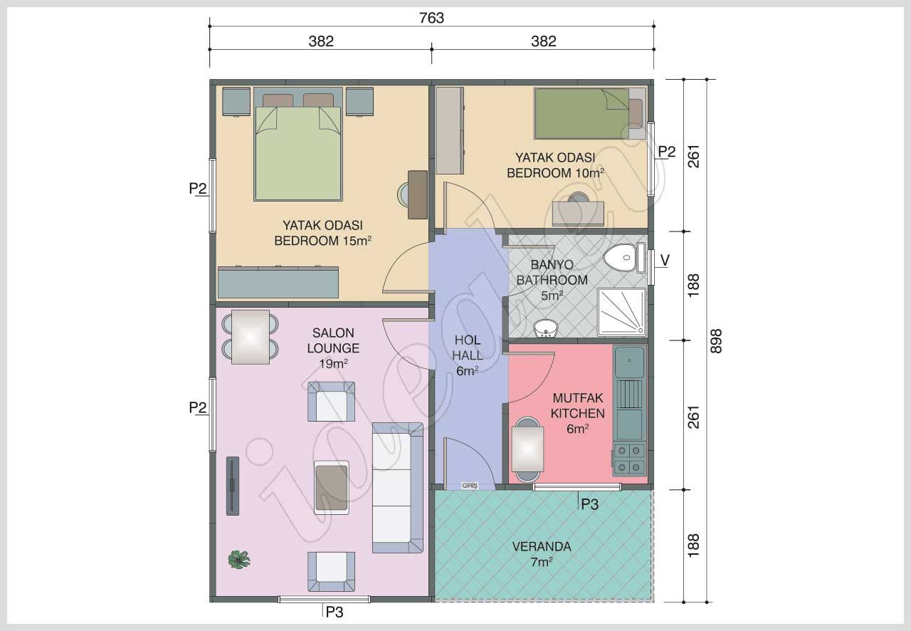
4. 68 sqm for 7,500 euros

Our last project is again a bungalow, this time with 68 square metres of living space. By the way, individual changes to the floor plan, furnishings and room layout of the prefabricated house are of course possible at any time upon request, so that the customer not only receives an off-the-shelf house, but his very own dream house.

The floor plan

The floor plan of the house makes perfect use of the 68 square metres. In addition to a living and dining area, there are two bedrooms , a bathroom and a kitchen as well as a spacious veranda. All rooms are accessible via the hallway and have large windows overlooking the garden.

Even with these small houses, did you know that it's possible to extend your space? We suggest you to read this How much would an extension cost me?

Would you like to remodel or renovate your house?

We’ll give you advice right away — no strings attached.

Highlights from our magazine