Before & after articles, tips & information

Before and After: From Mediocre to Modern Dream Home

In this house renovation project, professional architects from ARCHI-TEXTUAL in Bethesda, Washington, DC have turned a dated 1950's split-level home into a modern, minimalist, dream home that focuses on togetherness and family.

Before and After: From Mediocre to Modern Dream Home
Before and After: From Mediocre to Modern Dream Home
Before and After: From Mediocre to Modern Dream Home
30 September, 2017
Ad

Before and After homes: 5 extreme transformations!

To completely rebuild or simply renovate? This is the question that many potential homeowners have to ask themselves, especially seeing as renovating an old building is such a HUGE undertaking! Yes, you might find a charming property that makes you s…

Before and After homes: 5 extreme transformations!
Before and After homes: 5 extreme transformations!
Before and After homes: 5 extreme transformations!
10 August, 2017

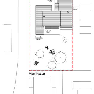
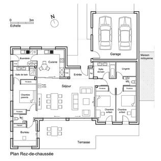
Before and after: from plans to perfect execution

We've seen a lot of amazing architect renderings for potential homes, but rarely have we been able to see how they were meant to look, compared to how they ACTUALLY appeared, once the build process was complete.

Before and after: from plans to perfect execution
Before and after: from plans to perfect execution
Before and after: from plans to perfect execution
29 July, 2017

Renovations: 1420 ft² home with excellent solutions to optimize the space

When you're working with an architect to create your dream home design, there must come a point when you start to wonder if the build itself will ever happen. Maybe that's just us being impatient, but while plans are amazing to see, you can't beat an…

Renovations: 1420 ft² home with excellent solutions to optimize the space
Renovations: 1420 ft² home with excellent solutions to optimize the space
Renovations: 1420 ft² home with excellent solutions to optimize the space
24 July, 2017

A 19th century home that got a serious upgrade!

If the idea of a modern extension and a traditional 19th century house doesn't instantly marry together in your brain, we totally understand, as we were a little hesitant as well, but once you see the gorgeous addition to this fabulous home, you'll k…

A 19th century home that got a serious upgrade!
A 19th century home that got a serious upgrade!
A 19th century home that got a serious upgrade!
21 July, 2017

Renovations: this place goes from empty shell to a comfortable home

The house we are about to see is set on the magnificent Caribbean coast at the center of northern Venezuela. It was redesigned and transformed from a dull space to a stylish modern home.

Renovations: this place goes from empty shell to a comfortable home
Renovations: this place goes from empty shell to a comfortable home
Renovations: this place goes from empty shell to a comfortable home
21 July, 2017

A home that went from bland to beautiful!

It takes a special kind of genius to be able to look at a blank canvas and picture what it could become, which is why interior designers are worth their weight in gold! Today, we are going to show you exactly why a talented designer is key to creatin…

A home that went from bland to beautiful!
A home that went from bland to beautiful!
A home that went from bland to beautiful!
19 July, 2017

A garden that overcame its limitations

A small and shady garden can be a real nightmare in terms of garnering a beautiful floral display, just ask any gardener and they'll tell you that, but with the help of a talented professional, you will be able to make so much more of an unfortunate…

A garden that overcame its limitations
A garden that overcame its limitations
A garden that overcame its limitations
08 July, 2017

A home transformation that left no space unturned

We have so much respect for the owners of today's home, as they clearly had a desire to focus all their attention on creating more beautiful and usable social spaces within their property, which has resulted in striking and gorgeous aesthetics.

A home transformation that left no space unturned
A home transformation that left no space unturned
A home transformation that left no space unturned
07 July, 2017

A barren wasteland that became a garden wonderland

Transforming a garden is a task fraught with hurdles and creative stumbling blocks, which is why so many of us know to leave it to professional landscape architects, but it's a good idea to have a rough plans as to what you want your outdoor space to…

A barren wasteland that became a garden wonderland
A barren wasteland that became a garden wonderland
A barren wasteland that became a garden wonderland
06 July, 2017